Conceito
Localizado em uma das regiões de maior valorização em Sorriso, há menos de 100 metros do hospital 13 de maio, próximo de comércios e avenidas e com projeto de concepção moderna, este empreendimento oferece aos moradores espaços bem planejados, funcionais e com área perfeita para o conforto da sua família.
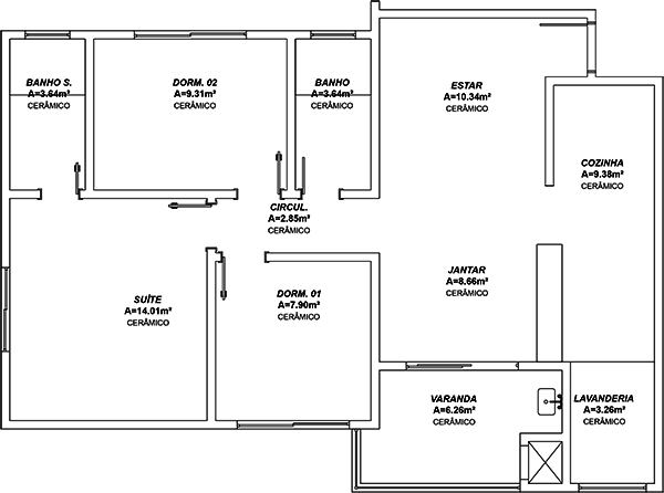
No Horizon você encontra apartamentos com área privativa de 90 m², com 2 vagas de garagem, 1 suíte + 2 quartos, além da sacada com churrasqueira.
Nossa área comum conta com portaria, piscina, salão de festas, espaço Kids, academia, área para esportes, elevador e acesso automatizado. Toda a estrutura necessária para ter uma vida tranquila.
No último andar, destaque no design e estilo dos apartamentos de cobertura, com 180 m² estes oferecem ainda mais espaço e uma vista privilegiada.
Agende uma visita e conheça o Horizon. Mais um empreendimento Villare para você e sua família.
Além dos espaços amplos e elegantes dos apartamentos, o Horizon oferece uma variedade de áreas comuns projetadas e decoradas
Plantas do Empreendimento
Diferenciais que você só encontra no Horizon
Apartamentos:
- Apartamento entregue com todos os acabamentos
- Churrasqueira a carvão na sacada
- Manta de isolamento acústico nas tubulações dos banheiros
- Forro de gesso liso em todo o apartamento
- Pisos com porcelanato de marca nacional rejuntado com material de fácil limpeza
- Esquadrias de alumínio em todas as aberturas externas
Condomínio - Áreas de Lazer:
- Áreas comuns entregues equipadas e decoradas
- Paisagismo implantado
- Estrutura preparada para instalação de portaria remota
- Academia
- Piscina
- Playground
- Área de convivência
- Salão de festas/espaço gourmet